本施工までの流れ

HOME | 砂防ソイルセメント詳細 | 本施工までの流れ

当社はこれまで、多くの砂防ソイルセメントの配合設計、試験施工、品質管理に携わってまいりました。
近年、砂防堰堤の内部材料としての活用が増えており、「砂防ソイルセメント施工便覧 平成28年版」(以下「施工便覧」という)において、砂防ソイルセメントの技術が詳細にまとめられています。
特に、砂防堰堤の内部材として活用する場合、その品質は構造物の安定性に大きく影響するため、CSGダムなどと同様に信頼性の高い品質の確保が不可欠です。一方で、性状の異なる現地土砂を求められる品質に改良する配合設計が課題となっており、これが砂防ソイルセメント工法の普及の壁となっています。
砂防ソイルセメントについては、一般財団法人 砂防・地すべり技術センターのWEBサイトもご参照ください(こちら)。

 砂防ソイルセメント本施工までの流れ


本施工までに、1. 試験準備・土砂採取、2. 配合試験計画検討、3. 配合試験作業、4. 配合試験分析/解析・配合設計、5. 試験施工という5つの段階に分類できます。通常、これにかかる日数は約111間です。
本施工開始に間に合うよう、余裕を持って計画を立てることが重要になります。
 

 1. 試験準備・土砂採取 


ここでは、砂防ソイルセメントの材料となる現地土砂を決める必要があります。
設計図書により要求性能を確認し、現地調査を行います。現地調査では、発注者と協議をしながら、土砂のバラツキ確認、賦存量調査、サンプリング箇所の確認を行い、現地調査協議資料を作成します。その後発注者の承認をもらうという流れになります。

目標品質である、配合強度、単位体積重量を確認後、現地土砂の適応性の概査を現地で行います。
 
掘削前に土砂を採取する場合は、砂防ソイルセメント工法の設計図書のボーリングデータや地質図などから、あらかじめ現地土砂のばらつきや概要を把握し、採取箇所を決めたうえで、現地で試掘します。
既に掘削が進んでいる場合は、掘削土砂のばらつきを確認し、使用する土砂を確定します。
ここでは、採取して配合試験を実施する土砂と、実工事で使用する土砂が同一であることが最も重要です。万が一性質が異なった場合、施工が始まった後に要求品質が確保できなくなり工期にも大きく影響してくるため、採取する土砂の選定はとても重要です。
 
また、計画された砂防ソイルセメント量と現地土砂の賦存量を確認し、不足する場合はその対応について事前に発注者と協議する必要があります。

当社の強み:

砂防堰堤の規模が大きいほど掘削するエリアが広範囲にわたり、また掘削する深さによっても土砂の性質が異なるため、ここで採取する土砂の選定はとても重要です。当社はこれまでの実績と経験に基づき、最適な採取土砂選定の提案を行います。土砂賦存量の確認も当社の強みの一つです。

 2. 配合試験計画書作成 


使用する土砂が決まったら、土質試験を実施し、その結果をもとに配合試験計画を検討します。
土質試験としては、粒度試験、締固め試験、含水比試験、有機不純物試験等、その他必要に応じて試験項目を選定し実施します。「施工便覧」では、現地土砂の性状把握にかかる試験の基準は以下とされています。

参照:砂防ソイルセメント施工便覧 平成28年版

砂防ソイルセメントは、セメント水和反応による強度発現を要求品質としているため、要求品質を確保するに当たり示方配合を決定するための配合試験がとても重要な役割を果たします。そのため、配合試験計画は、目標とする品質「強度」「単位体積重量」を満足する配合を慎重に検討する必要があります。検討内容としては、クラッシャーラン等の改良材の混合判断、セメント種類の決定、配合試験ケースの設定、配合試験方法の整理などが挙げられます。
 
一般的な配合試験では品質を確認するために28日間の養生期間を設定することから、配合試験における配合試験計画が適切でない場合は、追加試験が発生し配合試験に係る時間と費用が増大し、また工期にも大きく影響してしまいます。これを未然に防ぐには、配合試験計画を適切に設定する必要があります。
 
これらのことから、砂防ソイルセメント工法において、「配合試験」は極めて重要視されています。令和5年には、配合試験に相当する全国的な経費積算方法のばらつきを改善すべく、国土交通省から配合試験にかかる積算運用ルールの統一化において、重要事項として周知されています。
 

参照:砂防ソイルセメント施工便覧 平成28年版

 

当社の強み:

当社がこれまでに実施した多くの配合試験に携わった技術者がそれまでの知見を活かし、配合試験計画を立案します。これにより、これまで追加配合試験の実施はほとんどありません。また、適応性が低い土砂や現地でばらつきが懸念される土砂を活用する場合の対処法を想定した配合試験計画の立案を実施しています。

 3. 配合試験作業 


配合試験計画書に基づいて配合試験を実施します。基本的には、材齢7日と28日の圧縮強度を測定するため、最低でも28日間を要します。
 
計画書の試験含水比ケースにより、泥化が発生する場合もあるため、段階的に加水を行い、性状を評価していきます。
砂防ソイルセメントの施工は敷均し、転圧作業により実施するため、各ケースの配合による強度、密度だけでなく、泥化する含水比領域を勘案することも重要です。

 4. 配合試験分析解析・配合設計 


配合試験結果(材齢7日・28日強度)を基に、配合設計を検討し、示方配合の決定および試験施工の計画を行い、その内容について発注者の承認を得ます。
「施工便覧」に記載の通り、セメント水和反応による強度発現性には一定の規則性があり、基本的には以下に挙げる項目で精査を行います。
・材齢7日強度から材齢28日強度の伸び率
・各配合試験ケースにおいて最大強度が得られる含水比の推定
・目標強度(配合強度)を満足する配合ケースの確認
万が一、異常値が測定された場合は、その原因を明確にし、配合の再現性が懸念される場合は、再試験を実施する必要があります。
 
示方配合設計は、試験結果の解析からピーク強度含水比およびその前後(±2.0%程度)の含水比における強度を推定して検討し、最終的に示方配合が「施工便覧」の設定方法に基づいているかどうかを確認します。
 
また、配合試験報告書には、配合試験時に確認した混合後の性状(泥化など)を踏まえ、施工時に確認する事項を整理します。加水による土砂の性状変化などの特性を取りまとめ、配合試験報告書の内容を基に試験施工計画書の立案をします。

 

 

当社の強み:

単に要求品質を満たす配合を提案するだけではなく、施工時のワーカビリティを考慮した最適な配合を提案します。
配合試験において、現地での施工時に懸念される項目を試験施工時の確認事項として取りまとめるなど、本施工において確実に品質を確保する配合を検討することに重点をおいています。

 5. 試験施工 


砂防ソイルセメントにおいて、試験施工は本施工前に品質を確認するための重要なプロセスです。
これまでの実績の中でも、配合試験で採取した土砂と試験施工時の土砂に乖離が生じ、示方配合の補正を余儀なくされる事例が多く見られました。
そのため、当初の配合設計段階からこうした変動がありえることを考慮するとともに、試験施工のみならず、本施工の品質管理段階においても迅速な配合補正が可能な体制を構築することが重要です。
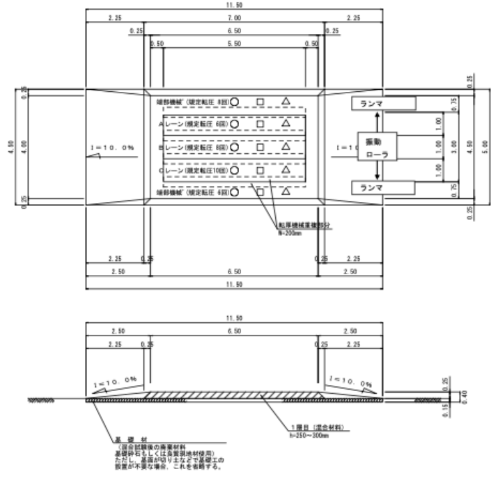
試験施工における基本的な作業工程は以下の通りです。
 
配合試験報告書の試験施工での確認事項を踏まえて作成した試験施工計画書基づいて実施し、現地での品質を確認します。
実施工で使用する機材を用い施工検証を行い、強度や密度の試験を実施することで品質の確認を行い、最適な機材と転圧回数を特定します。
配合試験時と同様、試験施工の際にも材齢7日強度、材齢28日強度を測定します
 
試験施工での結果を報告書にまとめ、発注者の承認を得られたら本施工の開始となります。

試験ヤード整地計画および試験位置図

当社の強み:

配合試験時に確認した情報をもとに、本施工で使用する施工機械で確認します。品質に問題が生じる可能性がある場合は、試験施工時にその対処を提案します。